精量電子拉繩電子尺位移傳感器由可拉伸的不銹鋼繩繞在一個有螺紋的輪轂上,此輪轂與一個由濟南精量研制的精密旋轉編碼器連接在一起,被測目標的位置變化使鋼繩的直線運動轉換成輪轂的角度運動。從而被角度傳感元件(編碼器或超高精度電位器)檢測到并轉換成標準的電信號輸出。
精量公司生產的電子尺位移傳感器產品根據不同行業的要求,大測量范圍可達到20,000mm,綜合精度可達到0.05%F.S,防護等級高到IP67,可輸出各種標準形式的模擬與數字信號,與絕大部分的測量和控制裝置兼容,確保工業與科學研究應用中的測量和自動控制準確無誤。

接線圖:
白:Vcc 黑:0V 紅:A 綠:B 黃:Z 粉:A- 藍:B- 橙:Z- 屏蔽:G
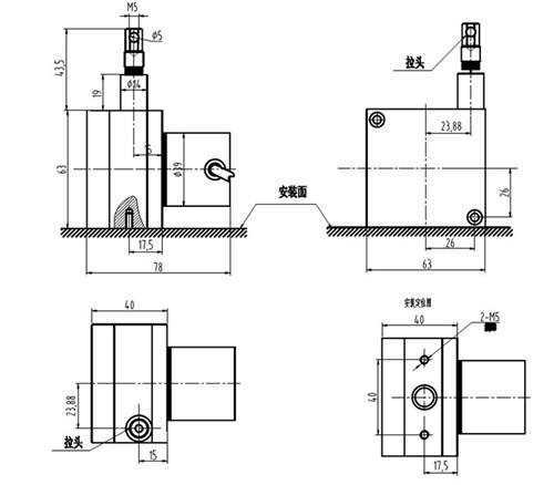
安裝尺寸(單位:mm)

安裝注意事項
l、請確認在電源關閉的狀態下進行接線
2、注意錯誤接線可能會損壞傳感器
3、請勿與高壓線或者電源線一起或在同一電線管內運行線路,信號請用專用屏蔽電纜傳輸,避免干擾
4、請確認電源電壓在額定范圍內變化
5、電源接通后的短時間內(50ms)請勿使用
6、如果在該產品附近使用產生電磁干擾的設備(開關調節器、高頻器、轉換發動機等)請做好設備的機架接地端子穩妥接地同時做好傳感器信號傳輸的屏蔽工作。
7、拉線傳感器屬于精密儀器請勿敲擊,保證設備和鋼絲繩清潔,延長使用壽命;
8、要保護好鋼絲繩不受外力損傷。
9、安裝時要使拉線垂直拉出,不能讓線摩擦出線口
10、若使用于環境惡劣或特殊場合,請自行加裝保護機構也可與我公司聯系定制產品。
11、若使用非直線運動的機構,請自行設計轉向機構或選購我公司拉線位移傳感器附件機構;
12、 注意拉線與出線口的垂直,亦即盡量使鋼絲繩垂直于出線口抽出,保持最小角度(≤30)以確保量測精度及鋼索之壽命;
特別提醒
1、拉線頭拉出后請不要松開,這樣會造成傳感器損壞;
2、拉線時請勿超出線總長。
主要技術參數
1、型號 JL100-P1000-001L
2、檢測方式 增量編碼器型
3、鋼絲繩 0.6mm進口涂塑鋼絲繩
4、拉線速度 600mm/s (MAX)
5、測量行程 0-1000mm
6、分辨率 0.01mm/p(輪轂周長100÷脈沖數2500÷4)
7、使用溫度 -25℃~+85℃
8、信號輸出 增量型脈沖信號
9、輸出特性 無
10、防護等級為IP56
服務承諾
l、本公司生產的產品免費保修期24個月
2、即在用戶遵守儀器的儲存和使用規則的條件下,產品因制造質量不良或者不能正常工作時,本公司無償為用戶維修,嚴重者可以給客戶更換產品,但下列情況除外:
3、 因不正確使用或不遵守使用條件而引起的故障
4、自行拆卸傳感器,影響產品的使用性能
5、產品出現使用問題時,公司承諾不分任何原因,無條件的首先解決問題,讓客戶滿意,然后再根據具體原因和客戶溝通維保中涉及的費用問題。
6、說明:拉頭部位有M5內螺紋
保修承諾:
我公司產品自合格出廠之日起,免費保修2年,終身維修。在免費保修期內產品發生非人為質量問題,我公司為客戶提供免費維修。如產品在免費保修期外出現故障,維修服務只適當收取材料成本費。在保修期內,以下情況將實行有償維修服務:
1、由于人為或不可抗拒的自然現象而發生的損壞。
2、由于拉繩電子尺操作不當而造成的故障或損壞。
3、由于對產品不正確的安裝,經他人維修而損壞。